Falttüren aus Aluminium
Harmoniktüren – Ideale Lösung für Restaurants und Orangerien
Maximale Öffnung zum Außenbereich: Harmoniktüren ermöglichen das vollständige Öffnen der Wand und bieten einen nahtlosen Übergang zwischen Innen- und Außenbereich. Dies ist besonders vorteilhaft für Restaurants mit Terrassen und Orangerien, wo der Kontakt mit der Natur und der Zugang zum Sonnenlicht entscheidend sind.
Konstruktive Flexibilität: Die Möglichkeit, die Türflügel beliebig zu konfigurieren, bietet große Gestaltungsmöglichkeiten. Die Türen können teilweise oder vollständig geöffnet werden, je nach Bedarf, was ideal ist, um den Raum an unterschiedliche Wetterbedingungen und die Anzahl der Gäste anzupassen.
Ästhetik und Stil: Harmoniktüren bieten nicht nur Funktionalität, sondern auch Eleganz und Modernität. Sie sind ein hervorragendes Dekorationselement, das das Prestige und die visuelle Attraktivität von Restaurants oder Orangerien erhöht.
Energieeffizienz und natürliches Licht: Die Verglasung der Harmoniktüren sorgt für eine ausgezeichnete thermische Isolierung und maximiert die Nutzung des natürlichen Lichts, was sowohl energetisch vorteilhaft ist als auch eine freundliche, helle Atmosphäre schafft.
Platzersparnis: Im Gegensatz zu herkömmlichen Türen falten sich Harmoniktüren zusammen und nehmen minimalen Platz ein, was besonders wichtig an Orten ist, wo jeder Zentimeter Raum wertvoll ist.
Haltbarkeit und einfache Bedienung: Moderne Materialien und Mechanismen in Harmoniktüren gewährleisten deren Haltbarkeit und einfache Bedienung, was für intensiv genutzte Räume wie Restaurants und Orangerien entscheidend ist.
Aluprof MB 86 Fold Line
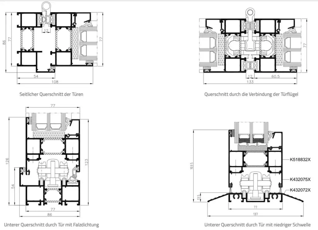
Aluminiumsystem
- Stabile Dreikammerprofile aus Aluminium mit einer Tiefe von 86 mm bei der Zarge und 77 mm bei den Türflügeln
- Die mittlere Kammer der Profile ist mit einer Wärmebarriere mit einer Breite von 24 mm bei den Zargen und von 34 mm bei den Türflügeln ausgestattet, was zu einer hohen Wärmedämmung der Konstruktion beiträgt
- Die speziell für das System MB-86 FOLD LINE bestimmten Beschläge garantieren eine komfortable Bedienung der Türflügel mit einem Maximalgewicht von bis zu 100 kg
Produktvorteile
- Die großen zulässigen Abmessungen der Konstruktion erlauben den Bau von Türen mit einer Flügelhöhe von bis zu 2700 mm und einer Breite von bis zu 1000 mm
- Verschiedenen Ausführungsversionen für die Schwelle: klassisch – mit Falzdichtung oder für eine bequeme Nutzung mit niedriger Schwelle
- Große Auswahl an Verglasungen von 14 bis 61,5 mm, was den Einsatz sowohl von Doppel- als auch Dreifachverglasungen ermöglicht, die ebenfalls mit erhöhter Schalldämmung oder als einbruchshemmende Variante ausgeführt werden können
- Zwei, sich hinsichtlich der Wärmedämmung unterscheidende Konstruktionsvarianten: Grundausführung ST (mit leerer Mittelkammer im Innern des Profils) und Variante HI mit erhöhter Wärmedämmung (mit Polyethyleneinlagen zwischen den Wärmebarrieren und den Isolierkammern)
- Weitreichende Kompatibilität der Konstruktion des Systems MB-86 FOLD LINE mit dem bekannten und bewährten Fensterund Türensystem ALUPROF MB-86: Verbindung der Profile wie bei MB-86 sowie teilweise für beide Systeme identische Profile, Dichtungen und Zubehör

Haben Sie Fragen zu Fenstern, Türen oder anderen Produkten ?
Kontaktieren Sie uns telefonisch oder schreiben Sie eine Nachricht. Gerne beantworten wir Ihre Fragen.
Siehe auch
Machen Sie sich mit anderen Produkten aus den folgenden Kategorien vertraut







