Fenster Aluprof
Aluminiumfenstersysteme werden aufgrund des breiten Anwendungsbereichs, hohen Profilfestigkeit und Lebensdauer immer beliebter. Die Möglichkeiten der Verwendung verschiedenen Verglasung und des Bauens der großen Konstruktionen ermöglicht freiwillige Entwürfe.Immer mehr Menschen entscheiden sich, in diese beständige, langlebige und dazu noch ästhetische Fenster zu investieren, die sowohl für Privathäuser als auch alle anderen Gebäuden gut geeignet sind.
Aluprof MB 104 Passive
Aluminiumsystem
- Luftdurchlässigkeit: Klasse 4, PN-EN 12207:2001
- Schlagregendichtigkeit: Bis Klasse AE 1800, PN-EN 12208:2001
- Wärmedämmung
Uw ab 0,53 W/(m²K) * - Widerstandsfähigkeit gegen Windlast:
Klasse C5/B5, PN-EN 12210:2001
Produktvorteile
- höhe Wärmedämmung Uw ab 0,53 W/(m2K)
- Dichtigkeits- und Dämmungsparameter über der Norm
- mögliche Breite der Verglasung bis zu 81 mm
- Rahmenbautiefe: 95 mm Fenster und 95 mm Tür
- Flügelbautiefe: 104 mm Fenster und 95 mm Tür
- Dichtigkeits- und Dämmungsparameter über der Norm
- Maximale Abmessungen der Fenster H bis 2900 mm und B bis 1700 mm
- Einbruchhemmende Fenster- und Türkonstruktionen in den Klassen RC1 bis RC3
- Schwelle mit einer Breite von 95 mm – Schwelle und Zarge in derselben Breite
Aluprof MB 86
Aluminiumsystem
- Luftdurchlässigkeit: Klasse 4, PN-EN 12207
- Wasserdichtigkeit: Klasse E 1500, EN 12208
- Wärmedämmung: Uf ab 0,57 W/(m²K), Uw ab 0,72 W/(m²K) **
- Windlastbeständigkeit: Klasse C5, EN 12210
Produktvorteile
- Uw von 0,72 W/(m2K)
- Luftdurchlässigkeit Klasse 4
- Große Auswahl an Profilen innerhalb des System
- Neu geformte, hoch wärmedämmende thermische Trennungen
- Rahmentiefe 77 mm
- Tiefe des Flügels: 86 mm Fenster und 77 mm Tür
- Dicke der Verglasung Zarge: 13,5 – 61,5 mm;Flügel: 21 – 70,5 mm
- Mitteldichtung aus mehreren Komponenten
- Maximale Abmessungen der Fenster H bis 2800 mm und B bis 1700 mm
Aluprof MB 70
Aluminiumsystem
- Luftdurchlässigkeit: Klasse 4, EN 1026:2001; EN 12207:2001
- Wasserdichtigkeit: bis Klasse E 1200, EN 1027:2001; EN 12208:2001
- Wärmedämmung: Uw ab 1,0 W/(m²K)
- Widerstandsfähigkeit gegen Windlast: Klasse C5/ EN 12211:2001; EN 12210:2001
Produktvorteile
- Bautiefe 70 mm (Blendrahmen)
- Flügeltiefe 79 mm
- Bautiefe der Türprofile 70 mm/70mm
- Dicke der Verglasung (feststehendes Fenster / öffenbares Fenster) 15 – 51 mm / 23 – 62 mm
- Wärmedämmung ab 1,0 W/(m²K)
- Uf von 1,5 bis 2,39 W/(m2K)
- Luftdurchlässigkeit Klasse 4
- 2K-Kunstkautschuk EPDM Dichtung
- die Verglasung von 21 mm bis 57 mm für Fensterflügel
HEBE- UND SCHIEBETÜR-SYSTEM ALUPROF MB 77 HS
Aluminiumsystem
- Luftdurchlässigkeit: Klasse 4, EN 12207
- Wasserdichtigkeit: Klasse 9A; EN 12208
- Wärmedämmung: Uf ab 1,4 W/(m²K) , Uw ab 0,84 W/(m²K)*
- Widerstandsfähigkeit gegen Windlast: bis Klasse C4 ; EN 12210
Produktvorteile
- Rahmentiefe 174 mm (Profile mit zwei Laufschienen), 271 mm (Profile mit drei Laufschienen)
- Türen bis zu einer Höhe von 3,2 m, einer Breite von 3,3 m
- Große Konstruktionen mit einer Breite von über 6 m
- Flügeltiefe 77 mm, Verglasungsstärke 13,5 – 58,5 mm
- minimale Profilansichtbreite Rahmen 48 mm und Flügel 94,5 mm – 105,5 mm
- Wärmedämmung Uw ab 0,84 W/m2K
- Luftdurchlässigkeit: Klasse 4
- Widerstand gegen Windlast: bis Klasse C4, EN 12210
- Widerstandsklasse bis RC2
Harmoniktüren – Ideale Lösung für Restaurants und Orangerien
Maximale Öffnung zum Außenbereich: Harmoniktüren ermöglichen das vollständige Öffnen der Wand und bieten einen nahtlosen Übergang zwischen Innen- und Außenbereich. Dies ist besonders vorteilhaft für Restaurants mit Terrassen und Orangerien, wo der Kontakt mit der Natur und der Zugang zum Sonnenlicht entscheidend sind.
Konstruktive Flexibilität: Die Möglichkeit, die Türflügel beliebig zu konfigurieren, bietet große Gestaltungsmöglichkeiten. Die Türen können teilweise oder vollständig geöffnet werden, je nach Bedarf, was ideal ist, um den Raum an unterschiedliche Wetterbedingungen und die Anzahl der Gäste anzupassen.
Ästhetik und Stil: Harmoniktüren bieten nicht nur Funktionalität, sondern auch Eleganz und Modernität. Sie sind ein hervorragendes Dekorationselement, das das Prestige und die visuelle Attraktivität von Restaurants oder Orangerien erhöht.
Energieeffizienz und natürliches Licht: Die Verglasung der Harmoniktüren sorgt für eine ausgezeichnete thermische Isolierung und maximiert die Nutzung des natürlichen Lichts, was sowohl energetisch vorteilhaft ist als auch eine freundliche, helle Atmosphäre schafft.
Platzersparnis: Im Gegensatz zu herkömmlichen Türen falten sich Harmoniktüren zusammen und nehmen minimalen Platz ein, was besonders wichtig an Orten ist, wo jeder Zentimeter Raum wertvoll ist.
Haltbarkeit und einfache Bedienung: Moderne Materialien und Mechanismen in Harmoniktüren gewährleisten deren Haltbarkeit und einfache Bedienung, was für intensiv genutzte Räume wie Restaurants und Orangerien entscheidend ist.
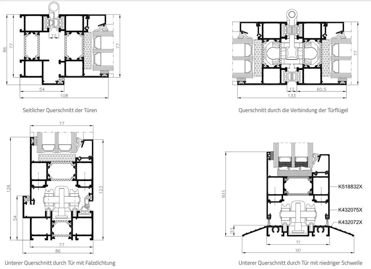
ALUPROF MB 86 Fold Line
Falttüren
Aluminiumsystem
- Stabile Dreikammerprofile aus Aluminium mit einer Tiefe von 86 mm bei der Zarge und 77 mm bei den Türflügeln
- Die mittlere Kammer der Profile ist mit einer Wärmebarriere mit einer Breite von 24 mm bei den Zargen und von 34 mm bei den Türflügeln ausgestattet, was zu einer hohen Wärmedämmung der Konstruktion beiträgt
- Die speziell für das System MB-86 FOLD LINE bestimmten Beschläge garantieren eine komfortable Bedienung der Türflügel mit einem Maximalgewicht von bis zu 100 kg
Produktvorteile
- Die großen zulässigen Abmessungen der Konstruktion erlauben den Bau von Türen mit einer Flügelhöhe von bis zu 2700 mm und einer Breite von bis zu 1000 mm
- Verschiedenen Ausführungsversionen für die Schwelle: klassisch – mit Falzdichtung oder für eine bequeme Nutzung mit niedriger Schwelle
- Große Auswahl an Verglasungen von 14 bis 61,5 mm, was den Einsatz sowohl von Doppel- als auch Dreifachverglasungen ermöglicht, die ebenfalls mit erhöhter Schalldämmung oder als einbruchshemmende Variante ausgeführt werden können
- Zwei, sich hinsichtlich der Wärmedämmung unterscheidende Konstruktionsvarianten: Grundausführung ST (mit leerer Mittelkammer im Innern des Profils) und Variante HI mit erhöhter Wärmedämmung (mit Polyethyleneinlagen zwischen den Wärmebarrieren und den Isolierkammern)
- Weitreichende Kompatibilität der Konstruktion des Systems MB-86 FOLD LINE mit dem bekannten und bewährten Fensterund Türensystem ALUPROF MB-86: Verbindung der Profile wie bei MB-86 sowie teilweise für beide Systeme identische Profile, Dichtungen und Zubehör
Was sind die Vorteile von Fenstern aus Aluprof-Profilen?
- Preis,
- Qualität,
- Design,
- moderner Stil

Haben Sie Fragen zu Fenstern, Türen oder anderen Produkten ?
Kontaktieren Sie uns telefonisch oder schreiben Sie eine Nachricht. Gerne beantworten wir Ihre Fragen.
Siehe auch
Machen Sie sich mit anderen Produkten aus den folgenden Kategorien vertraut







