+48 71 333 70 46

Schüco LivING Slide

Hebeschiebetüren für Balkon und Terrasse – Schüco LivIngSlide.

Entdecken Sie Schücos innovatives Profilsystem LivIngSlide, das speziell entwickelt wurde, um höchsten Anforderungen an Dichtigkeit, Energieeffizienz, Funktionalität und Design gerecht zu werden. Unsere Hebeschiebetüren bieten nicht nur mehr Sicherheit, sondern auch maximale Stabilität, die je nach statischen Anforderungen und Langlebigkeit durch optimal dimensionierte Verstärkungsprofile in Flügeln und Rahmen gewährleistet wird.

Dank unserer thermisch getrennten Bodenschwelle, des durchdachten Mehrkammersystems und der umlaufenden Dichtungen in Kombination mit einer hochwertigen 3-fach Verglasung erreichen unsere Hebeschiebetüren beeindruckende Wärmedämmwerte auf Passivhausniveau. Die intelligente Konstruktion der Schwelle ermöglicht eine effiziente thermische Entkopplung zwischen Innen- und Außenbereich, wodurch kalte Bodenflächen vor dem Fenster-Tür-System vermieden werden. Dies nicht nur spart Energiekosten, sondern steigert auch den Wohnkomfort, indem ein angenehmes und gleichmäßiges Raumklima geschaffen wird.

Erleben Sie höchste Qualität und innovative Technologie mit Schücos Hebeschiebetüren für Balkon und Terrasse – LivIngSlide.

Produktvorteile

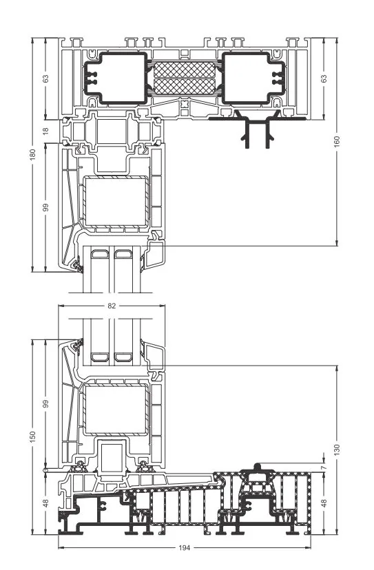
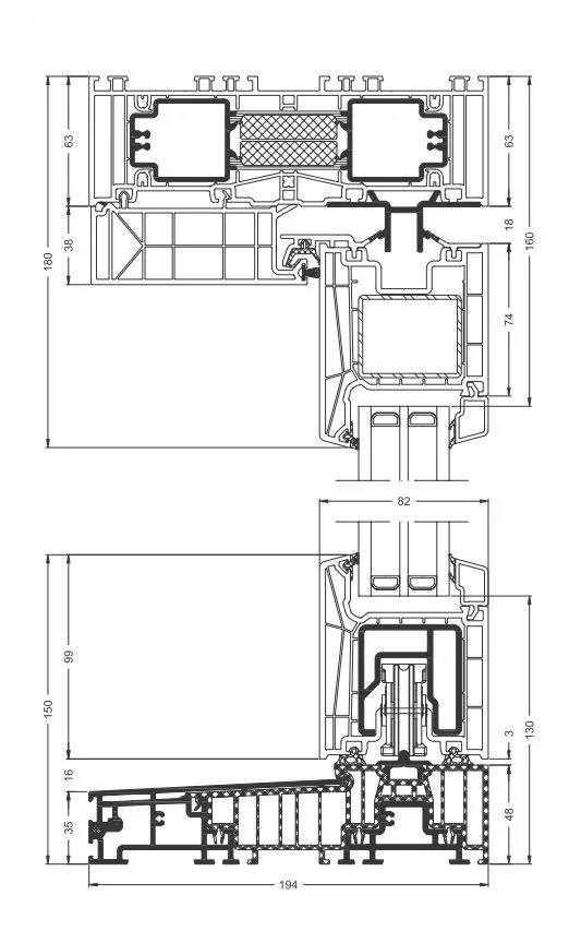
  • Profilsystem Schüco LivIngSlide ausgetüftelt in Deutschland
  • 4-Kammer-Profilsystem
  • Zargenbautiefe 194 mm
  • Flügelbautiefe 82 mm
  • Mitteldichtungssystem – 3-fach umlaufende Dichtungsebenen
  • bei 3-fach Verglasung mit Ug = 0,5 W/m²K = 
    Uw-Wert 0,77 W/m²K *
  • Glaspaketbreite von 24 mm bis 52 mm realisierbar​
  • Bis 300 kg max. Flügelgewicht
  • Thermisch getrennte flache Schwelle
    * Für das Referenzfenster mit den Abmessungen 3500×2300 mm.
Hebe-Schiebe-Tür Profil in Weiß von NORTA. Hochwertige Lösung für eine moderne und platzsparende Terrassenverbindung.

Siehe auch

Machen Sie sich mit anderen Produkten aus den folgenden Kategorien vertraut

Kontakt