+48 71 333 70 46

Easyslide

Holen Sie sich mehr Licht dank moderner Hebe- und Schiebetüren!

EasySlide-Hub- und Schiebetüren sind ideal überall dort, wo großflächige Konstruktionen erforderlich sind. Mit den Kunststoff-Hebe- und Schiebetüren von Schüco können Sie Ihre baulichen Anforderungen erfüllen. Enge sichtbare Profilbreiten und große Glasmaßen gewährleisten den höchstmöglichen Lichtbereich und erhöhen den Lebenskomfort.

Produktvorteile

  • Zugang ohne Barrieren zum Balkon, zur Terrasse oder zum Garten
  • Platzsparende Konstruktion
  • Einfache Bedienung
  • Große Öffnungsweiten
  • Hohe Wetterbeständigkeit
  • Optimale Schalldämmung
Profil einer Hebe-Schiebe-Tür in Weiß von NORTA. Optimales Design für Energieeffizienz und modernen Wohnkomfort.

Erwecken Sie den Alltag zum Leben und erleben Sie die Natur hautnah mit Schüco EasySlide.

Elegante, helle Glasarchitektur – Schüco EasySlide eröffnet neue Perspektiven für Ihre Wohnraumgestaltung. Hebe- und Schiebetüren öffnen die Tür zum Balkon, zur Terrasse oder zum Garten fast geräuschlos und sehr leicht. Genießen Sie einen offenen, geräumigen, frischen Wintergarten in Ihrem Wohnzimmer und einen reibungslosen Übergang ohne Barrieren im Freien.

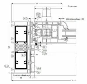
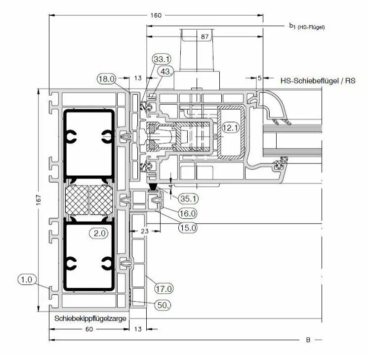
Dank der Mehrkammer-Kunststoffsysteme erzielt die Einbautiefe von 70 Millimetern und das hochwertige Isolierglas Schüco EasySlide hervorragende Wärmedämmwerte.

Die Schwelle der Hebeschiebetür ist so konstruiert, dass der Wärmebereich zwischen Innen- und Außenraum isoliert wird. Auf diese Weise wird die Bildung einer „kalten Brücke“ in der unteren Zone wirksam verhindert. Das innovative Dichtungssystem mit drei Dichtungsstufen garantiert maximale Wind- und Regenfestigkeit sowie optimalen Lärmschutz. Das bewährte Schließsystem erfüllt die höchsten Anforderungen an die Einbruchfestigkeit bis zur Widerstandsklasse 2 (RC 2).

  • 1  Thermische Trennung verhindert die Bildung einer „kalten Brücke“ in der Bodenzone.
  • 2 Flache Schwelle für hohen Komfort und barrierefreies Leben
  • 3 Die schmale Breite der sichtbaren Profile und die maximale Flügelgröße sorgen für Transparenz
Profilquerschnitt einer Hebe-Schiebe-Tür von NORTA. Ausgezeichnete Wärmedämmung und Stabilität für moderne Bauten.

EasySlide Hebe- und Schiebetüren,

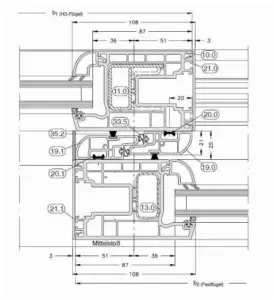
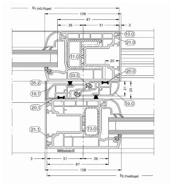
basierend auf dem Schüco Corona CT 70-System erzielen sie dank der ausgeklügelten Mehrkammer-Kunststoffprofile, 70 mm tiefem und hochwertigem Isolierglas hervorragende Wärmedämmeigenschaften.

Das innovative Dichtungssystem ist nicht nur wetterfest und schützt vor Wind und Regen, sondern garantiert auch eine optimale Schalldämmung. Dank der thermischen Trennung des Schwellenprofils gibt es keine Kältebrücken. Die Bildung der Erscheinung „kalter Boden“ kann durch thermische Trennung zwischen Innen und Außen wirksam vermieden werden.

Das flexible Corona CT 70 HS EasySlide-System bietet eine Vielzahl von Öffnungsarten. Je nach Größe der Öffnung sind zwei-, drei- oder vierflügeliege Versionen erhältlich. Da sich der Hebeflügel parallel zum festen Teil bewegt, sparen Sie viel Platz. Ein zusätzlicher Vorteil ist, dass die HS-Tür sehr einfach und mühelos bedient werden kann.

Die niedrige Schwelle der HS-Tür ermöglicht einen einfachen Zugang zum Balkon, zur Terrasse oder zum Garten, insbesondere für Kinder und Behinderte.

Individueller Komfort in vielen sehenswerten Varianten.


Schüco EasySlide basiert auf dem Schüco Corona CT 70-System. Dank dieses umfassenden Profilsystems können wir auch hochwertige Fenster und Türen für Sie entwerfen. Gerne informieren wir Sie ausführlich über das gesamte Sortiment.
Grafische Darstellung von Schüco EasySlide Hebe-Schiebe-Tür Konfigurationen. Verschiedene Öffnungsvarianten für flexible Raumlösungen.

Siehe auch

Machen Sie sich mit anderen Produkten aus den folgenden Kategorien vertraut

Kontakt